the mason

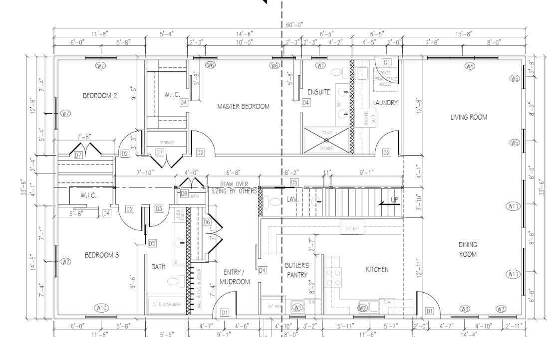
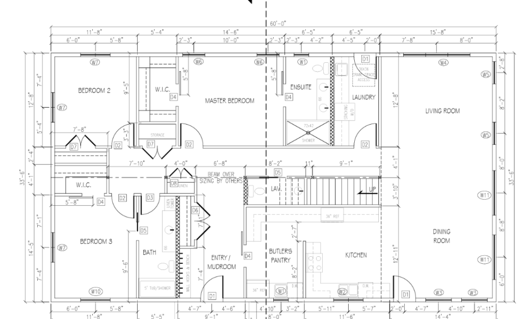
The Mason RTM Home

Price

Please Contact

Floorplan

*Second story floor plan on second pdf page*

Specifications

Highlights

Looking for something more custom?

We can do that! Contact us to inquire about a custom build.

Talk to Our Experts About Finding Your Ideal Home Design Today!

Book a Consultation

Fill out the form below to start the conversation.

* Required fields are indicated by a red star